业务咨询直线
:
15505510856
首页
关于我们
公司简介
企业文化
资质荣誉
厂区风貌
员工风采
人才招聘
新闻资讯
公司新闻
行业新闻
企业视频
产品中心
全自动大包装系列
码垛机械手
定量包装机BLD系列
型煤包装机
BLD-FF50阀口袋包装机
BLD-DB吨袋包装机
BLD-V体积包装秤
全自动小包装系列
组合秤
全自动定量包装机BLQ系列
产品视频
其它配套产品BLP系列
BLP-S输送机
BLP-T提升机
BL包装机配套产品
配料生产线
肥料自动配料生产线系列
单包配料系列
化工自动配料生产线系列
耐材、橡塑、建材
成功案例
公司案例
型煤行业
橡塑行业
化工行业
肥料行业
耐材行业
食品行业
在线留言
联系我们
配料生产线
肥料自动配料生产线系列
BB肥、掺混肥
水溶肥、滴灌肥
单包配料系列
化工自动配料生产线系列
耐材、橡塑、建材
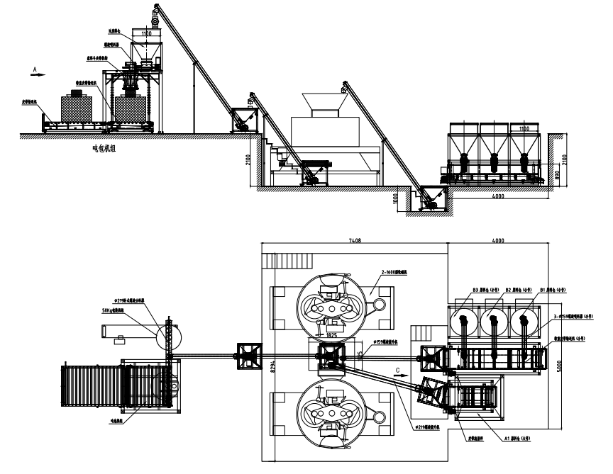
型煤粘合剂生产线
产品型号:
走进航晟
|
新闻中心
|
产品中心
|
客户案例
|
合作伙伴
|
联系我们
15505510856
企业地址:
合肥市瑶海区张洼路东金座嘉园1502室
企业热线:
15505510856
企业传真:
+86-0551-66334800
版权所有:安徽航晟自动化设备有限公司
皖ICP备2023026730号-1
皖公网安备 34012102000768号